5079 Cedar Lane, BROOKSVILLE, FL 34601
Active
Property Photos
Would you like to sell your home before you purchase this one?
Priced at Only: $715,000
For more Information Call:
Address: 5079 Cedar Lane, BROOKSVILLE, FL 34601
Property Location and Similar Properties
- MLS#: TB8477626 ( Residential )
- Street Address: 5079 Cedar Lane
- Viewed: 210
- Price: $715,000
- Price sqft: $175
- Waterfront: No
- Year Built: 2008
- Bldg sqft: 4075
- Bedrooms: 3
- Total Baths: 3
- Full Baths: 3
- Garage / Parking Spaces: 3
- Days On Market: 52
- Additional Information
- Geolocation: 28.5045 / -82.3365
- County: HERNANDO
- City: BROOKSVILLE
- Zipcode: 34601
- Subdivision: Lowery
- Elementary School: Eastside
- Middle School: D.S. Parrot
- High School: Hernando
- Provided by: THE WILKINS WAY LLC
- Contact: Sonja Heller
- 407-874-0230

- DMCA Notice
-
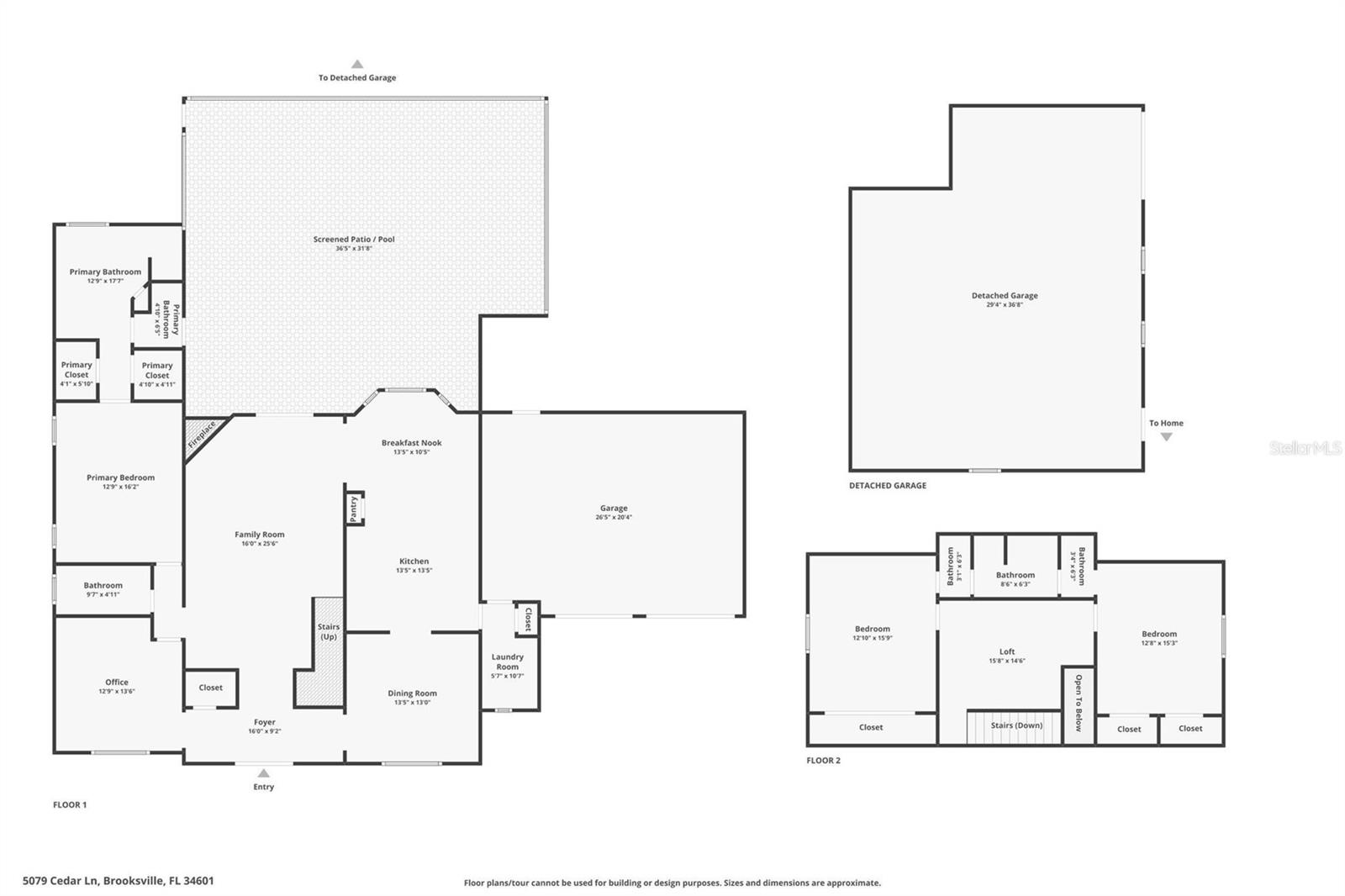
DescriptionWelcome to country living! This gorgeous custom pool home has 3 bedrooms, 3 bathrooms, and sits on a peaceful and private 1.75 acres and includes a spacious enclosed 40 x 30 WORKSHOP. The front entry welcomes you with a large, covered porch, a double door entry, and a bright 2 story foyer. The living room has NEW laminate wood floors and a stacked stone GAS fireplace. French doors lead out to the screen enclosed pool area with a covered lanai for entertaining and overlooks the wooded backyard. In the kitchen you will find quality wood cabinets, stainless steel appliances which features a glass top range & double oven, and a spacious breakfast nook. The owner's retreat is located on the main level with ensuite bath highlighting dual walk in closets, soaking tub, walk in shower, & separate water closet. The water closet also has entry to the pool for easy access. The main level also has a study/den and formal dining space. Upstairs you are welcomed with a charming loft space with two spacious bedrooms which share a Jack n Jill bathroom with private vanities to serve each bedroom. In the backyard you will find an oversized & airconditioned workshop. Other upgrades include plantation shutters, surround sound system for the living room and lanai, 3 car garage including a full height attic space above. The property is fully fenced and located close to major highways but still gives you the quite county feel. This stunning property is sure to impress.
Payment Calculator
- Principal & Interest -
- Property Tax $
- Home Insurance $
- HOA Fees $
- Monthly -
For a Fast & FREE Mortgage Pre-Approval
Apply Now
Apply NowFeatures
Building and Construction
- Covered Spaces: 0.00
- Exterior Features: French Doors, Lighting, Private Mailbox
- Fencing: Fenced
- Flooring: Carpet, Ceramic Tile, Laminate
- Living Area: 2643.00
- Other Structures: Shed(s), Storage, Workshop
- Roof: Shingle
Property Information
- Property Condition: Completed
Land Information
- Lot Features: Conservation Area, In County, Landscaped, Oversized Lot, Paved
School Information
- High School: Hernando High
- Middle School: D.S. Parrot Middle
- School Elementary: Eastside Elementary School
Garage and Parking
- Garage Spaces: 3.00
- Open Parking Spaces: 0.00
- Parking Features: Driveway, Garage Door Opener
Eco-Communities
- Pool Features: Gunite, In Ground, Lighting, Outside Bath Access, Screen Enclosure
- Water Source: Well
Utilities
- Carport Spaces: 0.00
- Cooling: Central Air
- Heating: Central
- Pets Allowed: Yes
- Sewer: Septic Tank
- Utilities: BB/HS Internet Available, Cable Available, Electricity Connected, Fire Hydrant, Propane, Sewer Connected, Water Connected
Finance and Tax Information
- Home Owners Association Fee: 0.00
- Insurance Expense: 0.00
- Net Operating Income: 0.00
- Other Expense: 0.00
- Tax Year: 2025
Other Features
- Appliances: Dishwasher, Range, Range Hood, Water Softener
- Country: US
- Furnished: Unfurnished
- Interior Features: Ceiling Fans(s), Eat-in Kitchen, High Ceilings, Primary Bedroom Main Floor, Thermostat, Walk-In Closet(s), Window Treatments
- Legal Description: Lowery Subdivision Lot 12
- Levels: Two
- Area Major: 34601 - Brooksville
- Occupant Type: Owner
- Parcel Number: R07 123 20 0656 0000 0120
- Possession: Close Of Escrow
- Style: Craftsman
- View: Trees/Woods
- Views: 210
- Zoning Code: R1B
Similar Properties
Nearby Subdivisions
14.6 Acres Mol In S12 Of Se14
Acerage
Acreage
Brooksville
Brooksville Est
Brooksville Town Of
Candlelight
Candlelight Unit 1
Candlelight Village
Candlelight Village Unit 7
Cascades At S H Plant Ph 1 Rep
Cascades At Southern Hills
Cascades At Southern Hills Pla
Cedar Falls Phase I
Cedar Lane Sites
Champion Estates
Croom Road Subdivision
Damac Estates
Dogwood Est Phase I
Dogwood Est Phase Iii
Dogwood Estate Ph I
Dogwood Estate Ph Iii
Dogwood Heights
East Brooksville
Emton
Emton Unit 2
Flora Stenholm - Class 1 Sub
Forest Hills Unrec
Garmisch Hills
Garys Mrs T H Add
Garys Mrs T H Addition
Golfview West
Gulf Ridge Park
H And H Homesites
Highland Park Add To Brksvl
Istachatta Acres Unrecorded
Kingswood Park 1st And 2nd
Kingswood Parkrep Of 2nd
Laurel Oaks Sub
Laws Add To Brooksvl
Leyland Preserve
Lowery
Ludlow Heights
Micklers Addition To Brksvl
Mitchell Heights
N/a
None
North Brksville Hghtsreplt
Not In Hernando
Not On List
Nottingham Forest
Owl Cattle Co Class 1 Sub
Parsons Add To Brooksville
Potterfield Hern Baby Farm
Royal Oaks Est
Royal Oaks Estate
Saxons Sub
Shadowlawn Annex
Shady Brook Park
South Way Estates
Southern Hills
Southern Hills Plantation
Southern Hills Plantation Club
Southern Hills Plantation Ph 1
Southern Hills Plantation Ph 2
Southern Hills Plantation Ph 3
Southern Hills Plantation Ph2
Southern Hills Plnt Ph1 Bl4735
Southern Hills Plnt Ph2 Bl1135
Spring Lake Area
Spring Lake Area Incl. Class 1
Spring Lake Assoc -class 1 Sub
Stafford
Stenholm Sub In Sw1/4 Unrec
Sunshine Terrace
Sunshine Terrace Unit 2
Sw14 Of Sw14 Less S347 Ft Ther
That Part Of Sw12 Of Nw14 Of N
Town Of Brooksville
Trails At Rivard Phs 1,2 And 6
Unplatted
Unrecorded
W12 Of Ne14 Of Se14 Of Sw14 Le
W12 Of Se14 Of Nw14 Of Ne14 Or
Whiteside
Whitman Pinesclass 1 Sub
William Lane Class 1 Sub
William Lane - Class 1 Sub






































































