7796 Lakes Edge Lane, PORT CHARLOTTE, FL 33981
Active
Property Photos
Would you like to sell your home before you purchase this one?
Priced at Only: $2,875
For more Information Call:
Address: 7796 Lakes Edge Lane, PORT CHARLOTTE, FL 33981
Property Location and Similar Properties
- MLS#: C7520354 ( Residential Lease )
- Street Address: 7796 Lakes Edge Lane
- Viewed: 44
- Price: $2,875
- Price sqft: $1
- Waterfront: No
- Year Built: 2025
- Bldg sqft: 3248
- Bedrooms: 3
- Total Baths: 2
- Full Baths: 2
- Garage / Parking Spaces: 2
- Days On Market: 17
- Additional Information
- Geolocation: 26.9153 / -82.1976
- County: CHARLOTTE
- City: PORT CHARLOTTE
- Zipcode: 33981
- Subdivision: Harbor Estate
- Provided by: WATERSEDGE REALTY GROUP, LLC
- Contact: Hari Pallempati
- 239-745-8090

- DMCA Notice
-
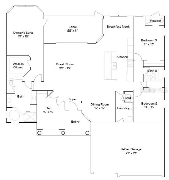
DescriptionThis beautifully designed Oakmont model is a modern single family residence located in the desirable Harbor East community of Port Charlotte. Known for its functional layout and contemporary style, this home offers 3 spacious bedrooms and 2 full bathrooms with another half bath,, making it ideal for families, or seasonal residents seeking comfortable Florida living. The home features an open concept floor plan that seamlessly connects the living room, dining area, and kitchen, creating a bright and welcoming atmosphere. The kitchen is thoughtfully designed with modern cabinetry, ample counter space, and a central island, perfect for everyday living and entertaining. The owner's suite includes a generous walk in closet and a private en suite bathroom, while the additional bedrooms are well sized and versatile for guests or a home office. A two car garage and covered lanai complete the home, offering both convenience and outdoor relaxation space. Harbor East is a quiet, well planned community that emphasizes low maintenance living and a relaxed coastal lifestyle. Residents enjoy nearby waterfront views, walking paths, and easy access to shopping, dining, and medical facilities throughout Port Charlotte and North Port. The neighborhood's location provides quick connections to major roadways, making daily commutes and weekend getaways simple and stress free. In terms of proximity, the home is conveniently located approximately 30 minutes from Punta Gorda Airport (PGD) and about 60 minutes from Southwest Florida International Airport (RSW) in Fort Myers. Popular Gulf Coast beaches such as Englewood Beach, Boca Grande, and Manasota Key are all within a 30 45 minute drive, offering easy access to pristine sands, boating, fishing, and coastal dining. This Oakmont model home combines comfort, location, and lifestyle making it an excellent choice in Southwest Florida.
Payment Calculator
- Principal & Interest -
- Property Tax $
- Home Insurance $
- HOA Fees $
- Monthly -
For a Fast & FREE Mortgage Pre-Approval
Apply Now
Apply NowFeatures
Building and Construction
- Covered Spaces: 0.00
- Living Area: 2328.00
Property Information
- Property Condition: Completed
Garage and Parking
- Garage Spaces: 2.00
- Open Parking Spaces: 0.00
Utilities
- Carport Spaces: 0.00
- Cooling: Central Air
- Heating: Central
- Pets Allowed: Dogs OK, Pet Deposit
Finance and Tax Information
- Home Owners Association Fee: 0.00
- Insurance Expense: 0.00
- Net Operating Income: 0.00
- Other Expense: 0.00
Other Features
- Appliances: Dishwasher, Dryer, Microwave, Refrigerator, Washer
- Association Name: Cristina Stewart
- Association Phone: 941 348 2912
- Country: US
- Furnished: Unfurnished
- Interior Features: Built-in Features, Ceiling Fans(s)
- Levels: One
- Area Major: 33981 - Port Charlotte
- Occupant Type: Vacant
- Parcel Number: 412110400037
- Views: 44
Owner Information
- Owner Pays: Insurance, Pest Control, Taxes
Similar Properties
Nearby Subdivisions
Alhambralk Marlin Ph I
Gulf Cove
Harbor East
Harbor Estate
Harbor West
Port Charlotte
Port Charlotte B Sec 78
Port Charlotte C Sec 82
Port Charlotte L Sec 58
Port Charlotte Sec 052
Port Charlotte Sec 054
Port Charlotte Sec 056
Port Charlotte Sec 058
Port Charlotte Sec 063
Port Charlotte Sec 066
Port Charlotte Sec 067
Port Charlotte Sec 071
Port Charlotte Sec 072
Port Charlotte Sec 078
Port Charlotte Sec 081
Port Charlotte Sec 082
Port Charlotte Sec 085
Port Charlotte Sec 093
Port Charlotte Sec 095
Port Charlotte Sec 87
Port Charlotte Sec 95 02
Port Charlotte Sec58 Blk4257 L
Port Charlotte Sub Sec 60
Port Charlotte Sub Sec 65
Port Charlotte Sub Sec 81
Port Charlotte Sub Sec 95







































