8509 Trail Wind Drive, TAMPA, FL 33647
Active
Property Photos
Would you like to sell your home before you purchase this one?
Priced at Only: $225,000
For more Information Call:
Address: 8509 Trail Wind Drive, TAMPA, FL 33647
Property Location and Similar Properties
- MLS#: TB8474722 ( Residential )
- Street Address: 8509 Trail Wind Drive
- Viewed: 10
- Price: $225,000
- Price sqft: $192
- Waterfront: No
- Year Built: 2006
- Bldg sqft: 1173
- Bedrooms: 2
- Total Baths: 3
- Full Baths: 2
- 1/2 Baths: 1
- Days On Market: 17
- Additional Information
- Geolocation: 28.167 / -82.368
- County: HILLSBOROUGH
- City: TAMPA
- Zipcode: 33647
- Subdivision: Hammocks
- Elementary School: Turner Elem
- Middle School: Bartels
- High School: Wharton
- Provided by: HOMEXPRESS REALTY, INC.
- Contact: Xiomara Hess
- 813-641-2500

- DMCA Notice
-
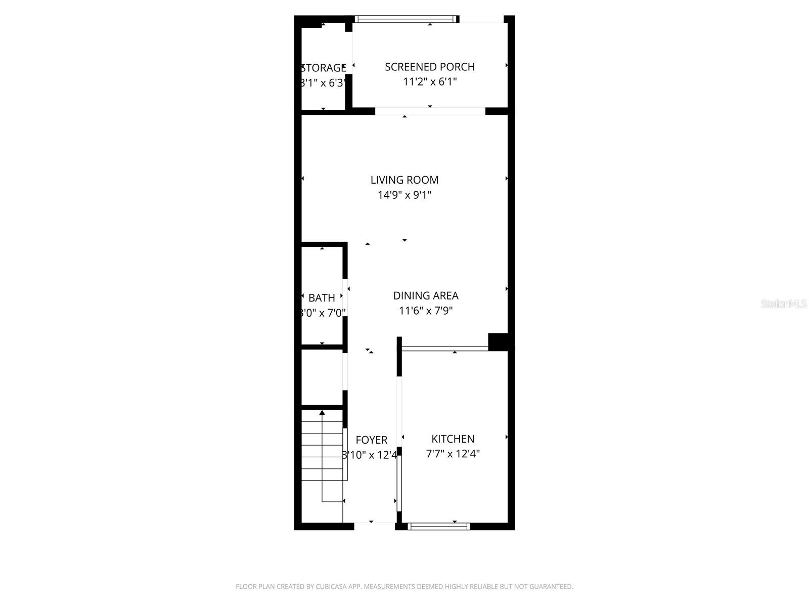
DescriptionThis beautiful 2 bedroom, 2.5 bath townhome located in the highly desirable and rapidly growing New Tampa and Wesley Chapel area. This move in ready home features an open concept floor plan perfect for modern living and entertaining. Upstairs, you'll find two spacious bedrooms, each with its own bathroom, offering comfort and privacy. The second floor is fully enclosed in solid cinderblock construction, providing added durability and sound insulation. The kitchen showcases granite countertops, a stylish travertine backsplash, and ample cabinet space. A brand new A/C system provides peace of mind, and a new roof is scheduled for installation in 2026 with new nest thermostat. Enjoy Florida living year round in the screened in lanai ideal for relaxing or entertaining guests. Located in an excellent community close to shopping, dining, entertainment, and major highways, this home offers convenience and comfort in one of the area's most sought after locations.
Payment Calculator
- Principal & Interest -
- Property Tax $
- Home Insurance $
- HOA Fees $
- Monthly -
For a Fast & FREE Mortgage Pre-Approval
Apply Now
Apply NowFeatures
Building and Construction
- Covered Spaces: 0.00
- Exterior Features: Sidewalk, Sliding Doors, Storage
- Fencing: Vinyl
- Flooring: Carpet, Tile
- Living Area: 1173.00
- Roof: Shingle
Property Information
- Property Condition: Completed
Land Information
- Lot Features: Sidewalk, Paved
School Information
- High School: Wharton-HB
- Middle School: Bartels Middle
- School Elementary: Turner Elem-HB
Garage and Parking
- Garage Spaces: 0.00
- Open Parking Spaces: 0.00
Eco-Communities
- Water Source: Public
Utilities
- Carport Spaces: 0.00
- Cooling: Central Air
- Heating: Central
- Pets Allowed: Breed Restrictions, Cats OK, Dogs OK, Number Limit, Size Limit
- Sewer: Public Sewer
- Utilities: BB/HS Internet Available, Cable Available, Electricity Available
Amenities
- Association Amenities: Cable TV, Fence Restrictions, Fitness Center, Gated, Pool
Finance and Tax Information
- Home Owners Association Fee Includes: Cable TV, Pool, Internet, Maintenance Structure, Maintenance Grounds, Trash
- Home Owners Association Fee: 725.00
- Insurance Expense: 0.00
- Net Operating Income: 0.00
- Other Expense: 0.00
- Tax Year: 2024
Other Features
- Appliances: Dishwasher, Disposal, Dryer, Electric Water Heater, Microwave, Range, Range Hood, Refrigerator, Washer
- Association Name: Qualified Property Management
- Association Phone: Brooke
- Country: US
- Furnished: Unfurnished
- Interior Features: Ceiling Fans(s), Open Floorplan, PrimaryBedroom Upstairs, Thermostat, Walk-In Closet(s), Window Treatments
- Legal Description: HAMMOCKS LOT 2 BLOCK 46
- Levels: Two
- Area Major: 33647 - Tampa / Tampa Palms
- Occupant Type: Owner
- Parcel Number: A-01-27-19-88J-000046-00002.0
- Possession: Close Of Escrow
- Style: Traditional
- View: Trees/Woods
- Views: 10
- Zoning Code: PD-A
Similar Properties







































